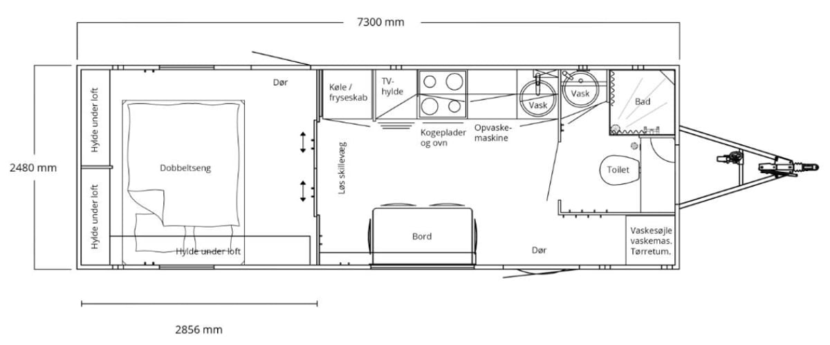
2 pers. Beboelses/Køkkenvogn
Med dobbeltseng eller efter behov, bad og køkken. Den er 7,30 meter lang.
Midlertidig bolig
Indret nemt din imidlertidige bolig, så dit ophold bliver så behageligt, at du ikke savner din egen seng.
Denne vogn findes i 3 modeller, se skitsen:
– Model 1: 2 mindre værelser med seng.
– Model 2: 1 soveværelse med dobbeltseng.
– Model 3: 1 multirum med inventar efter dine ønsker.
Der kan indsættes 1 køjeseng i multirummet, når der er behov for det.
El-tilslutning: 400V 16A CEE stik.
Adaptor medfølger til 230V med jord (alm. stikkontakt). Vognen er bygget til 400 V og virker derfor bedst med denne tilslutning.
Mål: L: 730 cm B: 250 cm H: 300 cm
Længde med anhængertræk 901 cm
Egenvægt: 2200 kg
Totalvægt: 2600 kg
Indret efter behov
Ekstraomkostninger til indretning og inventar, kan forekomme.
Køb af køkkenpakke 1:
18 tallerkner, 6 glas, 24 dele bestik, 6 kopper.
Spørg efter gældende pris.
Køb af køkkenpakke 2:
3 køkkenknive, 2 skærebrædder, 1 proptrækker, 3 gryder, 1 pande.
Køkkenredskaber, bordskåner, 2 grydelapper og 1 Kokkekniv.
Spørg efter gældende pris.
Andre modeller:
Beboelsesvogn OFV kan indrettes til 2 eller 4 personer.
Foretrækkes af håndværkere, da soverummene er placeret i hver sin ende af vognen.
Sammenkobling af vogne:
Model med 2 døre kan sammenkobles
Kunne du tænke dig at høre mere?
Så lad os ringe dig op!
Tilbehør
- Startpakke
– Toiletpapir, madamepose, håndsæbe og håndklædepapir for 75 kr. ex. moms. - Varmeslanger
– Frostsikring af vand- & kloakslanger - Overkørselsbakker
– Benyttes ved trafik over slanger - Antigraffiti behandling
– Hvis vognen benyttes i risikoområder - Vandværk
– Når alm. tilslutning ikke er mulig - 1.000 L. Vandtank eller kloaktank
– Når alm. tilslutning ikke er mulig - Bimåler til el
– Hvis afregning af forbrug ønskes - Bimåler til vand
– Hvis afregning af forbrug ønskes - Trappe med gelænder
- Gang- og køreplader
Andre modeller
Lejebetingelser
Efter kun 30 dage:
Betaler du for det antal dage vognen har været lejet! F.eks. ved 96 dage, betaler du for 96 dage – ikke 4 måneder.
Når du har fået udleveret vognen, har du den til du ikke skal bruge den mere. Max. 3 dages opsigelse.
På Besøg hos Karlsvognen










