6 pers. Beboelsesvogn
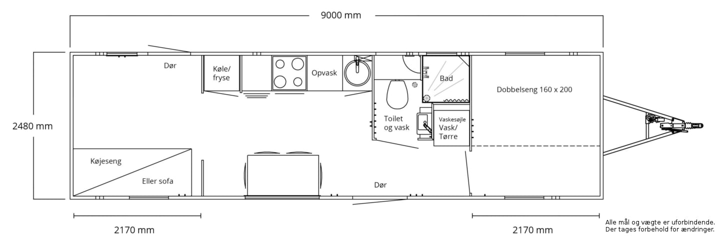
Med 6 sovepladser, bad og køkken. Den er 9 meter lang.
Minimumsleje er 30 dage*. Ved kortere leje – ring for tilbud.
Prisen er med 20 meter slanger, elkabel og kværn. Klar til brug!
| Månedsleje - Alle priser er ex. moms (skift til inkl. moms) | 30 dage | Pr. dag | |
|---|---|---|---|
| 6 pers. Beboelsesvogn model 1-2? 900 | Kr. | 6.199,00 | 206,63 |
| Forsikring & miljøafgift 7,5 % | Kr. | 464,93 | 15,50 |
| Hvis du selv henter vognen er prisen | Kr. | 6.663,93 | 222,13 |
| Ugeleje - Alle priser er ex. moms (skift til inkl. moms) | 1. uge | Ekstra uger | |
|---|---|---|---|
| 6 pers. Beboelsesvogn model 1-2? 900 | Kr. | 3.719,40 | 1.859,70 |
| Forsikring & miljøafgift 7,5 % | Kr. | 278,96 | 139,48 |
| Hvis du selv henter vognen er prisen | Kr. | 3.998,36 | 1.999,18 |
| Du kan tilvælge efter behov | Pr. stk | ||
|---|---|---|---|
| Levering (sjælland) | Kr. | 1.399,00 | |
| Alm. opsætning & tilslutning, pris pr. påbegyndt time | Kr. | 699,00 | |
| Nedtagning & afmontering, pris pr. påbegyndt time | Kr. | 699,00 | |
| Afhentning (sjælland) | Kr. | 1.399,00 | |
| Strakstillæg - udlevering indenfor 48 timer | Kr. | 599,00 | |
| Eksprestillæg - indenfor 24 timer | Kr. | 1.099,00 | |
| Rengøring Bebo 6 900 - kan ikke fravælges | Kr. | 1.688,00 |
Eksklusivt meget plads!
Det er en luksus og følelsen af eksklusivitet, som når man opgraderer sin friluftstur til glamping!
Denne vogn er beregnet til private. Mere plads og flere muligheder, men lave leveringsomkostninger.
Vognen er med 1 bred indgangsdør (90 cm), og 1 terrassedør på modsatte side af vognen. En vogn med høj komfort, f.eks. opvaskemaskine, fryseskab, ovn og vaskemaskine samt tørretumbler.
Soveværelse med dobbeltseng, og 1 eller 2 værelser med enkelseng eller sofa.
Vognen kan benyttes alene, eller sammenkoblet med flere andre vogntyper (f.eks. sammen med Multivogne med 1 eller 2 rum). Ved sammenkobling er der direkte adgang mellem vognene igennem terrassedøren, det er opstillingspladsen der afgør max. antal sammenkoblet vogne.
Denne vogn udlejes i 3 modeller, med forskellig ruminddeling – lejeprisen er den samme for alle 3 modeller.:
- 1. 1 Soveværelse og 2 værelser
- 2. 1 Soveværelse og 1 multirum
- 3. 1 Soveværelse og køkken – alrum
Køkken og badeværelser er ens i alle 3 modeller.
El-tilslutning 400V 16 A CEE stik.
Mål: L: 900 cm B: 250 cm H: 302 cm
Længde med anhængertræk 1085 cm
Egenvægt: 2900 kg
Totalvægt: 3000 kg
Indret efter behov
Ekstraomkostninger til indretning og inventar, kan forekomme.
Køb af køkkenpakke 1:
18 tallerkner, 6 glas, 24 dele bestik, 6 kopper.
Spørg efter gældende pris.
Køb af køkkenpakke 2:
3 køkkenknive, 2 skærebrædder, 1 proptrækker, 3 gryder, 1 pande.
Køkkenredskaber, bordskåner, 2 grydelapper og 1 Kokkekniv.
Spørg efter gældende pris.
Kan indrettes efter behov:
Borde, stole, sofa. Senge: Dobbeltseng / køjesenge / enkeltsenge. Ekstraomkostninger til indretning og inventar, kan forekomme.
Sammenkobling af vogne:
Model med 2 døre kan sammenkobles.
Eksempler på sammenkobling af vogne
Kunne du tænke dig at høre mere?
Så lad os ringe dig op!
Tilbehør
- Startpakke
– Toiletpapir, madamepose, håndsæbe og håndklædepapir for 75 kr. ex. moms. - Varmeslanger
– Frostsikring af vand- & kloakslanger - Overkørselsbakker
– Benyttes ved trafik over slanger - Antigraffiti behandling
– Hvis vognen benyttes i risikoområder - Vandværk
– Når alm. tilslutning ikke er mulig - 1.000 L. Vandtank eller kloaktank
– Når alm. tilslutning ikke er mulig - Bimåler til el
– Hvis afregning af forbrug ønskes - Bimåler til vand
– Hvis afregning af forbrug ønskes - Trappe med gelænder
- Gang- og køreplader
Andre modeller
360° kig ind i vognen
Lejebetingelser
Efter kun 30 dage:
Betaler du for det antal dage vognen har været lejet! F.eks. ved 96 dage, betaler du for 96 dage - ikke 4 måneder.
Når du har fået udleveret vognen, har du den til du ikke skal bruge den mere. Max. 3 dages opsigelse.
Opsætningsvejledning











